社外にシェア等しないでください
ホーム
x:フロー図
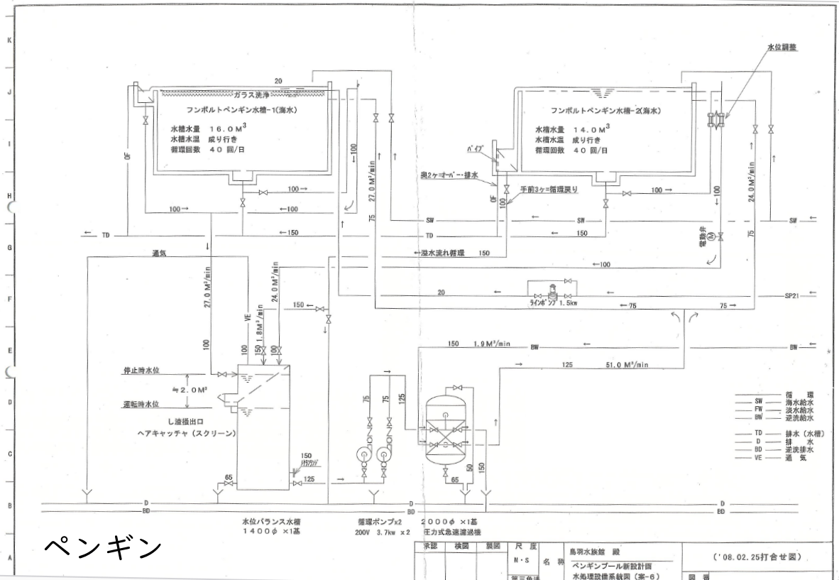
【飼育確認済み】ペンギン(設計時フロー図)
x:フロー図
2026.01.24
2026.03.24
設計時フロー図
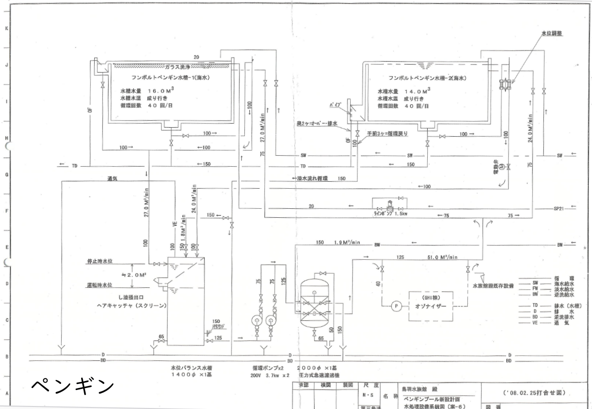
施工フロー図
コメント
ホーム
検索
トップ
サイドバー
コメント