社外にシェア等しないでください
ホーム
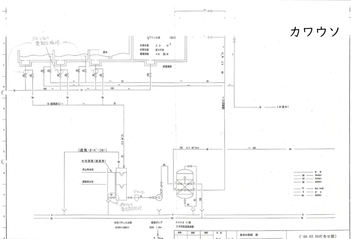
x:フロー図
カワウソ(設計時フロー図)
x:フロー図
2026.01.24
2026.01.28
コメント
ホーム
検索
トップ
サイドバー
コメント